Nappali + 3 szobás új építésű ikerház Balogunyomban
Vissza a listához- Eladó
- Azonosító: 135101684
- Ingatlan típusa: Családi ház
- Település: Balogunyom
- Építési mód: Könnyűszerkezetes
- Építés éve: 2025
- Lakótér mérete: 100 m2
- Telek mérete: 350 m2
- Parkolás: Udvarban
- Légkondicionáló: Saját split klíma
- Víz: Van, saját vízórával
- Ár: 73,500,000 Ft
Szombathelytől 8 km-re, az első településen, Balogunyomban ikerház eladó!
A településen minden megtalálható, amire a hétköznapokban szükség van (pl. óvoda, orvosi ellátás, bolt stb)
Autóval 6 perc alatt elérhető Szombathely, de itt autóba sem kell ülnie, köszönhetően a gyakori busz és vonatközlekedésnek, valamint a végig kiépített bicikliútnak.
Vadonatúj, könnyűszerkezetes ikerház épül a legmodernebb technológiával. Kiemelkedő hőszigetelés és alacsony rezsiköltség biztosít kényelmes, egészséges otthont a fenntarthatóság jegyében.
Letisztult építészeti stílus jellemzi, valamint praktikus belső elrendezés , tágas nappali és fényes hálószobák.
Élvezze a saját kert előnyeit egy csendes, új környéken.
Választhat, hogy nappali + 3 szobát szeretne vagy fontosabb Önnek egy gardrób? Vagy háztartási helyiség?Döntse el, itt megteheti.
A házak fűtését hőszivattyús rendszer padlófűtés biztosítja.
Burkolatok, szaniterek, klíma, szúnyogháló, redőny, garázskapu, kerítés, tereprendezés az árban van már.
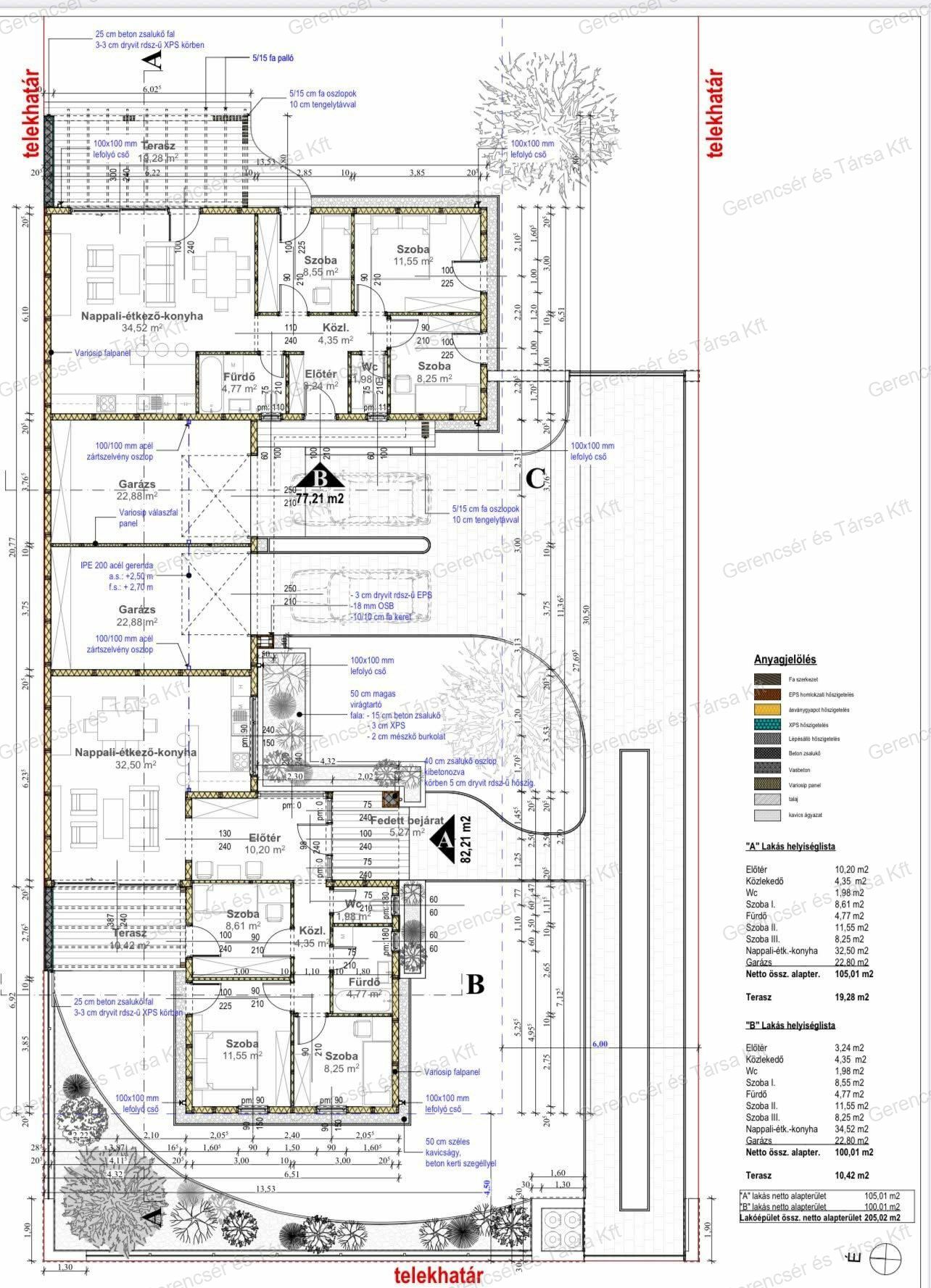
Az ikerház 900 m2-es telken helyezkedik el.
"A" lakás:
Nappali+3 hálószoba
100 m2
10,4 m2 terasz
23 m2 garázs
ÁR: 73.500.000 Ft
"B" lakás:
Nappali+3 hálószoba
105 m2
19 m2 terasz
23 m2 garázs
Ár: 77.000.000 Ft
A költséghatékonyság mellett a másik nagy előny, hogy a vásárlástól számítva akár 6 hónap múlva beköltözhet otthonába.
ingyenes
