Arborétum lakópark V.ütem
Szombathely legkeresettebb új építésű projektje folytatódik! Ez már az V.ütem!
Költözés: 2026.őszén
Szombathelyen családi házas övezetben a Farkas Károly utcában most épülő új, nappali + egyszobás ill. nappali + kétszobás lakások várják leendő tulajdonosaikat.
A tervező által megálmodott Arborétum lakópark Szombathely északi részén csendes, nyugodt, nagyon jó infrastruktúrával rendelkező környezetben valósul meg. A méltán népszerű és keresett környék előnye, hogy egyesíti a belváros közelsége és a kertvárosi lét minden pozitívumát.
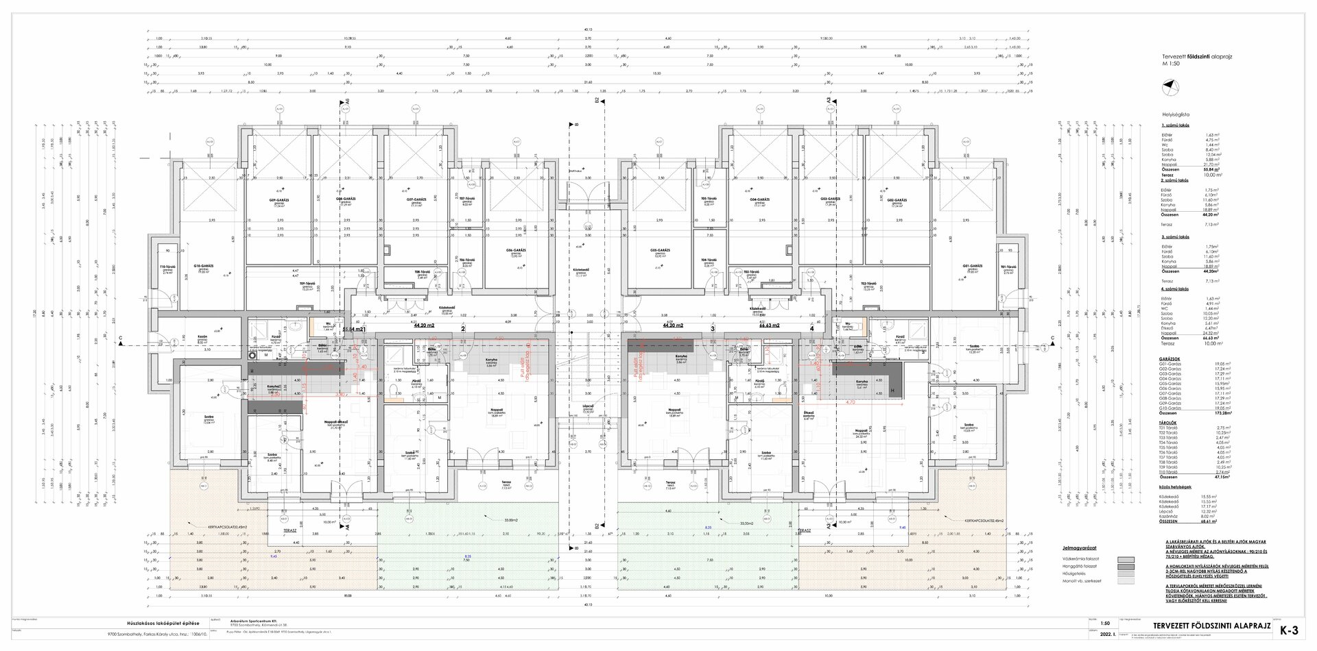
Az ingatlanokhoz garázs vásárolható 10,9 M Ft-ért, valamint zárt udvari felszíni, térkövezett parkoló 1,8 M Ft-ért. Tárolók megvásárlására is van lehetőség, 1,5 M- 3,8 M Ft értékesítési áron.
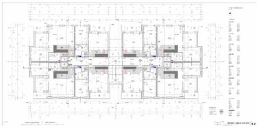
A 2 emeletes, 20 lakásos modern társasházak a kor elvárásainak megfelelő magas műszaki tartalommal valósulnak meg. A kiváló tájolású 40-67 m2 közötti ingatlanokat nagyon jó elosztás és élhető terek jellemzik, ennek köszönhetően kedveltek a fiatalabb és az idősebb korosztály körében is. A komfortérzetet tovább növeli, hogy a földszinti lakások terasszal és kertkapcsolattal rendelkeznek, az emeleti lakásokhoz pedig jó méretű erkély tartozik.
A lakások értékállóságát az átgondolt tervezés és minőségi anyagok felhasználása biztosítja. Az innovatív építészeti megoldásokat tartalmazó épületek kedvező energetikai besorolással készülnek.
Általános szerkezeti, műszaki kialakítási adatok:
Alapozás:
Monolit beton sávalap C12 - 32 / FN minőségű betonból.
Lábazat:
LEIER lábazati betonelemből cementhabarcsba rakva.
Talajnedvesség elleni szigetelés:
2 rtg. Villas bitumenes vastaglemez.
Külső falazat:
30 cm vtg. nutféderes vázkerámiából, falazóhabarcsba rakva 15 cm EPS külső szigeteléssel, 1 cm belső vakolattal.
Belső teherhordó-szerkezet:
30 cm vtg. nutféderes hanggátló vázkerámia tégla falazóhabarcsba rakva.
Kémény:
Leier v. Schiedel kéményrendszer.
Áthidalók:
Porotherm v. Leier kerámia kéregelemes rendszerű típus szerkezetek. A nagy fesztávú nyílások felett monolit vasbeton áthidaló
Födém:
5 cm vastagságú Leier Mesterpanel födém 18 cm vasalt falbetonnal.
Zárófödém hőszigetelés:
Leier Mesterpanel 25 cm lépésálló EPS hőszigeteléssel.
Csapadékvíz elleni szigetelés:
1 rtg. SIKAPLAN műanyag vagy azzal egyenértékű PVC vízszigetelés.
Válaszfalak:
Porotherm vagy azzal egyenértékű 10 cm vtg. válaszfal elemekből
Belső felületképzés:
Simított vakolat, glettelve és fehér diszperziós belső falfestékkel festve két rétegben. A mennyezeten helyenként gipszkarton borítás készül, szintén glettelve és festve.
Nyílászárók:
3 rtg. hő- és hangszigetelt üvegezésű műanyag ablakok és erkélyajtók redőny fogadására alkalmas szemöldök kialakítással. A lakások bejárati ajtaja MABISZ minősítéssel rendelkező lakásbejárati ajtó, a belső válaszfal ajtók utólag szerelhető dekorfóliázott tele kivitelű ajtók, több színben választhatók.
Redőny:
Redőny előkészítés kerül kivitelezésre. Utólag kizárólag RAL 7016 színkódú redőny szerelhető (többletköltség fejében)
Burkolatok:
Előszoba, konyha, fürdő és WC helyiségekben I. osztályú minőségben 4-5 kopás-állóságú lapburkolat.
Nappali és szobák:
I. oszt. minőségű 7mm vtg. laminált parketta széles választékban.
Fürdő: Csempeburkolat 2, 10 m magasságig.
WC: Csempeburkolat 2, 10 m magasságig.
Szellőzés:
A nyílászáróval rendelkező helyiségek természetes módon, az épület belső terű helységei (wc, fürdő) elszívásos szellőzést kapnak kapcsolóról működtetett módon.
Konyhai elszívás kiépítéséhez elszívót nem biztosítunk, de a légcsatornát az általunk kijelölt helyre kiépítjük.
Szaniterek:
Fehér porcelán termékek kerülnek beépítésre, fürdőkád vagy normál magas
zuhanytálca, mosdó, Wc csésze, műanyag nyomógombos, víztakarékos falba rejtett,
beépített tartállyal Wc ülőke, kézmosó.
Csaptelepek, szerelvények:
Fürdőszobánként 1 db egykaros kádtöltő csaptelep,
zuhanyrózsával, 1 db egykaros mosdó csaptelep, 1 db mosógép víz csatorna
csatlakozás.
Fűtés:
Központi gázfűtés tervezett, kondenzációs gázkazánnal a lakásokban padlófűtéssel egyedi hőmennyiség szabályozással és mérővel.
Amennyiben a hatályos jogszabályok előírják a megújuló (kiegészítő) energia kiépítését, a szükséges arányban biztosítjuk. Ez esetben a homlokzaton vagy a közösségi térben (udvar) kültéri egység is kerül kiépítésre.
A használati meleg vizet lakásonként 1 db elektromos víztározó egységgel kívánjuk biztosítani, melyet a lakáson belül a vizes helységben fogunk elhelyezni.
Elektromos szerelés:
Lakásonkénti áramellátás 1*32 A fogja biztosítani.
Helyiségenként 1 db kapcsoló és 1 db mennyezeti lámpa
csatlakozás, a fürdőben tükörvilágítás csatlakozás kerül kiépítésre; a nappaliban 5db,
a szobákban 4db dugaljt, szobánként 1db antenna dugaljt helyezünk
el; a konyhában +3db dugalj, tűzhely-és sütőcsatlakozás kerül kiépítésre és 1 db légcsatorna; a lakásokba 1db kaputelefon, 1db ajtócsengő csatlakozás kerül.
Teraszon 1db világítás csatlakozást és 1db dugaljt helyezünk el. Armatúrákat ill. csillárokat a lakónak kell biztosítani. Klíma előkészítést a vételár magában foglalja.
Tereprendezés: Füvesített udvar és szilárd burkolatú parkoló.
Parkoló: 6*10*20-as Piatra szürke térkővel burkolt felület, antracit/sötét szürke vezetősávokkal leválasztott parkolóhelyek.
Garázs:
2 db dugalj, 1 db mennyezeti lámpa kiállás, motoros kapu előkészítés, Hörmann garázskapu.
Tárolók: 1db mennyezeti lámpa, 1db kapcsoló minden tárolóban.
Telekhatár: A telekhatáron 3D-s porszórt kerítés készül lábazattal.
Homlokzatra semmilyen szerelvény és kültéri egység nem szerelhető.
Klíma kültéri egysége a lakások erkélyének alsó részén a mellvéd fal takarásában lehetséges.
Irodánk teljeskörű hitelügyintézést is biztosít az érdeklődő ügyfeleinknek, azaz első alkalommal egy beszélgetés keretében megvizsgáljuk a hitelképességet, majd azt követően egyénre szabott, kedvezményes hitelajánlatokat kap. Mindezt díjmentesen biztosítjuk ügyfeleink részére.
Bármilyen kérdés esetén hívjon!
Amatics Andrea
+36 20 9999 723
ingyenes
